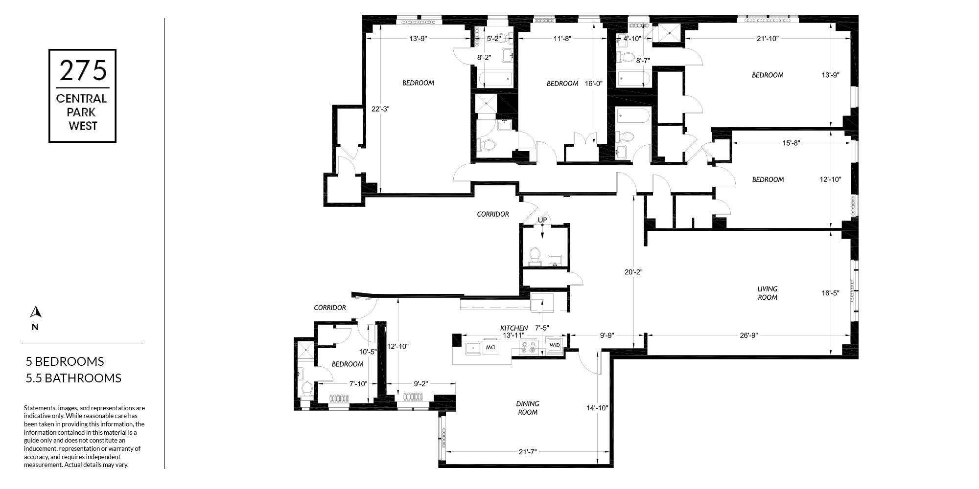
275 CPW – 5 Bedroom – 5.5 Bath